Extension and renovation of a school gym
| CLIENT | Commune de Burg-Reuland |
| PARTNERS | A+ Concept I ECM |
| LOCATION | Rue Reuland, 63 I 4790 Burg-Reuland |
| AREAS | 2.034 m² |
| BUDGET | € 1.687.997 |
| TIMING | 2017 - 2018 |
| STATUS | Completed |
| CREDIT | Georges De Kinder |
| SECTOR |
|
| DURABILITY |
|
| VALUES |
|
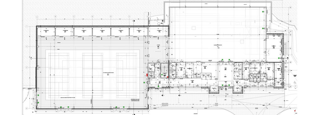
Located in Burg-Reuland, this project involves the renovation and extension of an existing school gymnasium, with the ambition of both increasing its capacity and significantly enhancing its energy performance.
The intervention introduces a new cubic volume designed to accommodate a second gymnasium, while a new cafeteria is positioned between the two halls on the upper floor. This configuration creates visual connections between the spaces, offering direct views into both gyms and strengthening the sense of unity within the complex.
The existing building has been fully re-insulated and comprehensively redesigned to improve functionality and circulation. Beyond expanding the facilities, the transformation integrates state-of-the-art technical systems and a high-performance building envelope, ensuring a substantial improvement in energy efficiency.
Architecturally, the new volume is defined by its cubic form, optimized for prefabrication in order to control construction costs. Its light grey sandwich concrete panel cladding contrasts deliberately with the original structure. Parts of the existing building are enhanced with openwork vertical wooden cladding, creating a dialogue between old and new and giving the ensemble a renewed architectural identity.








