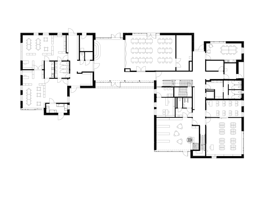
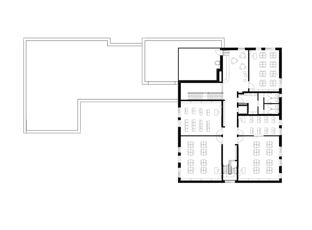
Construction of a kindergarten and primary school
| CLIENT | Administration communale de Saint-Vith |
| PARTNERS | Lemaire Ingénieurs |
| LOCATION | Schulstrasse, 7 I 4784 Emmels |
| AREAS | 1.595 m² |
| BUDGET | € 4.113.610 |
| TIMING | 2021-... |
| STATUS | Ongoing |
| CREDIT | Asymétrie |
| SECTOR |
|
| DURABILITY |
|
| CERTIFICATION |
|
| VALUES |
|



