Renovation - redesign of workspaces
| CLIENT | Sibelga |
| PARTNERS | Seca |
| LOCATION | Quai des Usines, 16 I 1000 Bruxelles |
| AREAS | 1.568 m² |
| BUDGET | € 3.000.000 |
| TIMING | 2024-2026 |
| STATUS | Ongoing |
| CREDIT | ZOA Studio |
| SECTOR |
|
| VALUES |
|
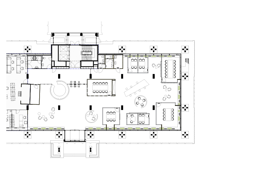
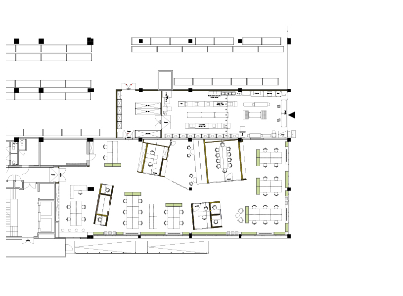
As part of the ‘Working Together – New Way of Working’ (NWOW) project, the architectural renovation and refurbishment project at Sibelga concerns two spaces (B/0 and C/0) located on the ground floor of their head office.
In B/0, the aim is to create activity and meeting areas, particularly for meetings, and to redesign the internal circulation to make it more visitor-friendly. The spaces between rooms allow for views of the surrounding landscape and the placement of indoor planters.
In C/0, the new layout is designed on the principle of a “village”. The spatial composition is generated by integrating functions into “boxes” that allow the space to be structured in a fluid manner and make full use of the beautiful ceiling height. The integration of the three departments into a single space generates genuine interaction and collaboration between employees, while maintaining the grouping and identity of each department. Particular attention has been paid to acoustics, with the aim of striking a good balance between activity areas and concentration areas. The project also features a range of natural, bio-based materials.









