Extension of the sports complex and construction of a new multi-purpose sports hall
| CLIENT | BELIRIS / commune Evere |
| PARTNERS | NEY / MK Engineering |
| LOCATION | Avenue des Anciens Combattants 300 I 1140 Bruxelles |
| AREAS | 2973 m² |
| BUDGET | € 7.300.000 |
| TIMING | 2019-2025 |
| STATUS | Completed |
| CREDIT | Georges De Kinder |
| SECTOR |
|
| DURABILITY |
|
| VALUES |
|
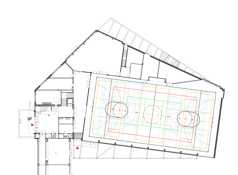
The project for the new multi-purpose sports hall in Evere is part of a drive to renovate and improve the quality of the municipality’s public facilities. Located within the sports complex on Avenue des Anciens Combattants, this extension will replace the François Guillaume hall, which is due to be decommissioned, offering a contemporary, inclusive and sustainable sports facility.
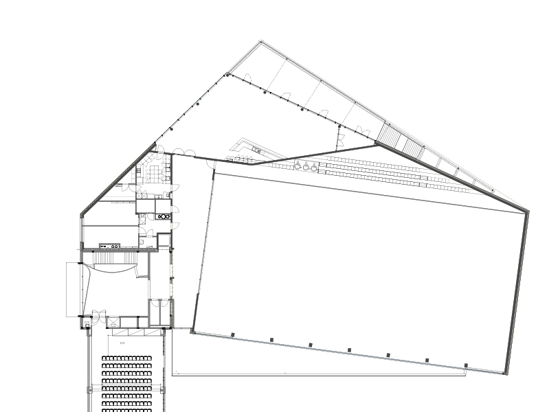
The project features a dynamic volume, created by oblique extensions. The roof, with its variable slope, creates a play of heights and aligns with the existing building. The prefabricated concrete, exposed brick and insulated render facades guarantee robustness, durability and architectural clarity. Accents of yellow enliven the circulation areas and public spaces, echoing the sporting and community character of the site.
The programme consists of a large 1,000 m² multi-sports hall, a small glass-fronted warm-up room, changing rooms in the basement, technical rooms, storage areas, 100-seat stands (including 3 for people with reduced mobility) and a cafeteria with a suspended terrace offering a panoramic view of the outdoor grounds.












