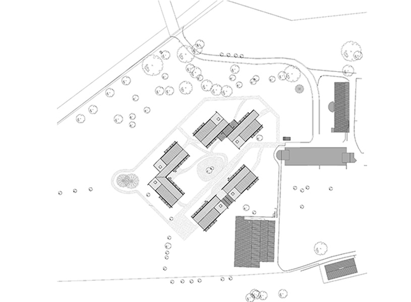
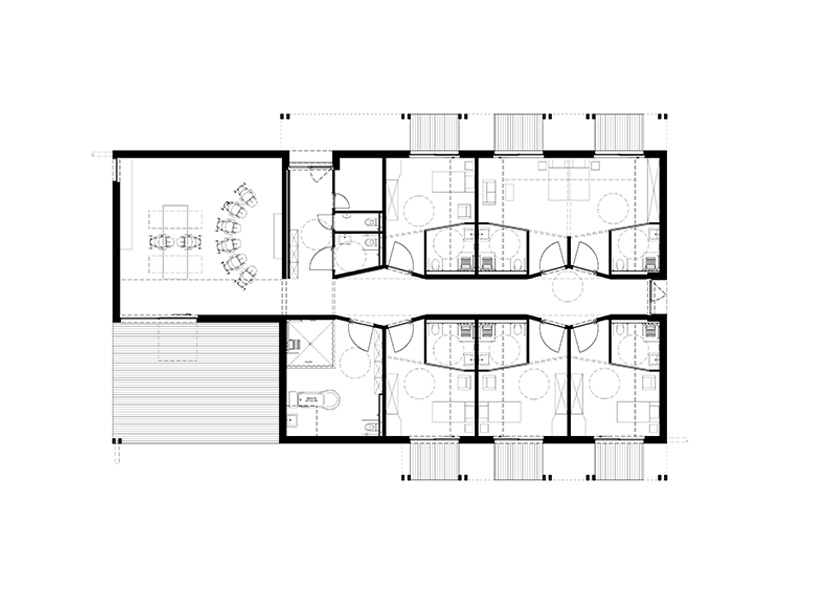
Construction of 6 residential units for people with multiple disabilities
| CLIENT | Chateau Vert |
| PARTNERS | Lemaire Ingénieurs |
| LOCATION | Chemin de Perwez, 16 I 4500 Ben-Ahin |
| AREAS | 2.350 m² |
| BUDGET | € 6.307.011 |
| TIMING | 2023-2025 |
| STATUS | Completed |
| CREDIT | Asymétrie I Altiplan |
| SECTOR |
|
| VALUES |
|




